Townhouse in Alhaurín el Grande

€ 159,000
Enquire about this property...


Message about this property...

Property details
CDS28646 CDS28646 Real EstateCostaDelSolPropertyGroup.com Limited Availability 2026-07-22 159000

    Notice: Trying to access array offset on value of type bool in /var/www/clients/client5/web6/web/property.php on line 328

    Notice: Trying to access array offset on value of type bool in /var/www/clients/client5/web6/web/property.php on line 328
  • Property ID: CDS28646
  • Price: € 159,000
  • Plot Size: 0 m²
  • Built Size: 92 m²
  • Terrace Size: 0 m²
  • Bedrooms: 3
  • Bathrooms: 2
  • Property Type: Townhouse
Setting

Description


Fantastic property to be finished in the historic centre of Alhaurín El Grande.
The house has been made completely rebuilt from the foundations.
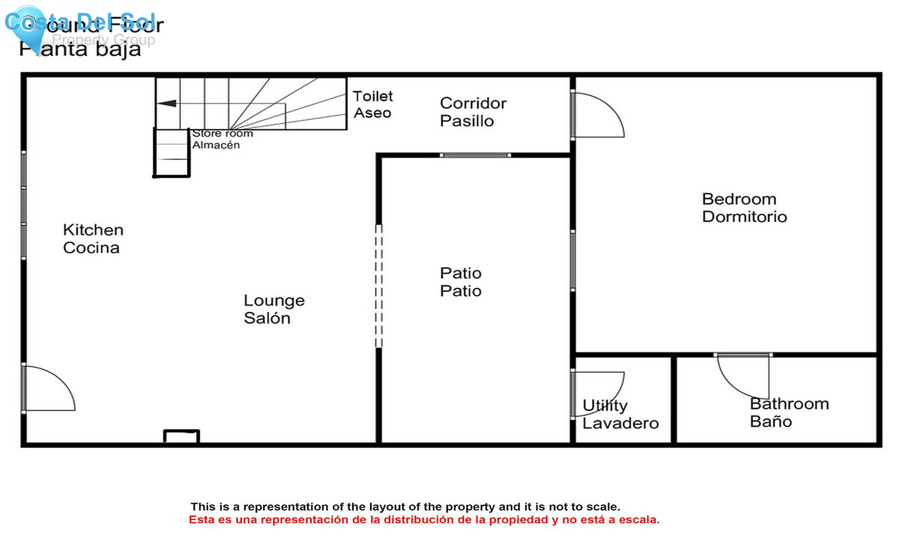
It is distributed over two floors.
On the ground floor there is a kitchen, open-plan living-dining room, WC, patio with utility room, and a bedroom with ensuite bathroom.
On the top floor there is a bathroom and a large open-plan room (which could be divided into two separate rooms) and a nice terrace to make a chillout area.
This area could also be made into another bedroom / office should the buyer so desire.
The house benefits from white PVC double glazed windows and air-conditioning ducts throughout.
It is an ideal house to be finished by client according to their taste.


Property video

Location
  • Area: Costa del Sol
  • Town: Alhaurín el Grande

Current Weather in Alhaurín el Grande

Loading Weather...

About:

Alhaurín el Grande is a town located in the province of Málaga in the autonomous community of Andalusia in southern Spain.
It covers an area of 73.1 km2 extending from the northern slope of the Sierra de Mijas and the plain of the Guadalhorce river, where alternate crops of citrus and other fruit trees orchards are found.
The population reaches 23,675 inhabitants, according to 2010 data.
The origin of the name was given by the Arabs, who called it "Alhaurin", where the Catholic Monarchs added "el Grande" to distinguish it from the neighboring town of Alhaurín de la Torre after the conquest of both sites in 1485.
It is situated between the river Fahala and the stream of Blas González.
The coast is close by and there is a network of roads to get there.
There is a road to Málaga Airport and Torremolinos, which takes about 30 minutes by car.
A new road was built in 2010 connecting the town with Fuengirola and the beach which is only 20 minutes drive.
There is also another new road to Marbella, to the southwest with Mijas just along a winding road round the mountain.
From Alhaurín there is a view over the "Hoya de Málaga", Málaga's vale, full of lemon trees and other fruit trees.
Villafranco del Guadalhorce is a village within Alhaurín el Grande's municipal territory.
It was founded by colonist families in the 1950s and subsidized by the Instituto Nacional de Colonización of the Spanish government.



Latest Townhouse
Townhouse in Elviria
Townhouse
Townhouse in Elviria
Elviria
€ 489,000
  • Bed 3
  • Bath 3
  • 160 m2
Townhouse in Riviera del Sol
Townhouse
Townhouse in Riviera del Sol
Riviera del Sol
€ 485,000
  • Bed 4
  • Bath 4
  • 220 m2
Townhouse in Pizarra
Townhouse
Townhouse in Pizarra
Pizarra
€ 286,000
  • Bed 4
  • Bath 3
  • 332 m2

Notice: Trying to access array offset on value of type bool in /var/www/clients/client5/web6/web/Global-Includes/footer.php on line 1
File does not exist. "https://costadelsolpropertygroup.com/propertyVideos/noVideo.mp4"