Townhouse in Torrequebrada

€ 250,000
Enquire about this property...


Message about this property...

Property details
CDS31746 CDS31746 Real EstateCostaDelSolPropertyGroup.com Limited Availability 2026-07-24 250000

    Notice: Trying to access array offset on value of type bool in /var/www/clients/client5/web6/web/property.php on line 328

    Notice: Trying to access array offset on value of type bool in /var/www/clients/client5/web6/web/property.php on line 328
  • Property ID: CDS31746
  • Price: € 250,000
  • Plot Size: 0 m2
  • Built Size: 112 m2
  • Terrace Size: 33 m2
  • Bedrooms: 2
  • Bathrooms: 1.5
  • Property Type: Townhouse
  • Kitchen: Fully Fitted,Partially Fitted
  • Pool: Communal
  • Views: Sea,Mountain,Panoramic,Garden,Pool,Urban
  • Garden: Communal
  • Security: Entry Phone
  • Furniture: Optional
Setting
  • Close To Golf,Close To Shops,Close To Sea,Close To Town,Close To Schools

Description

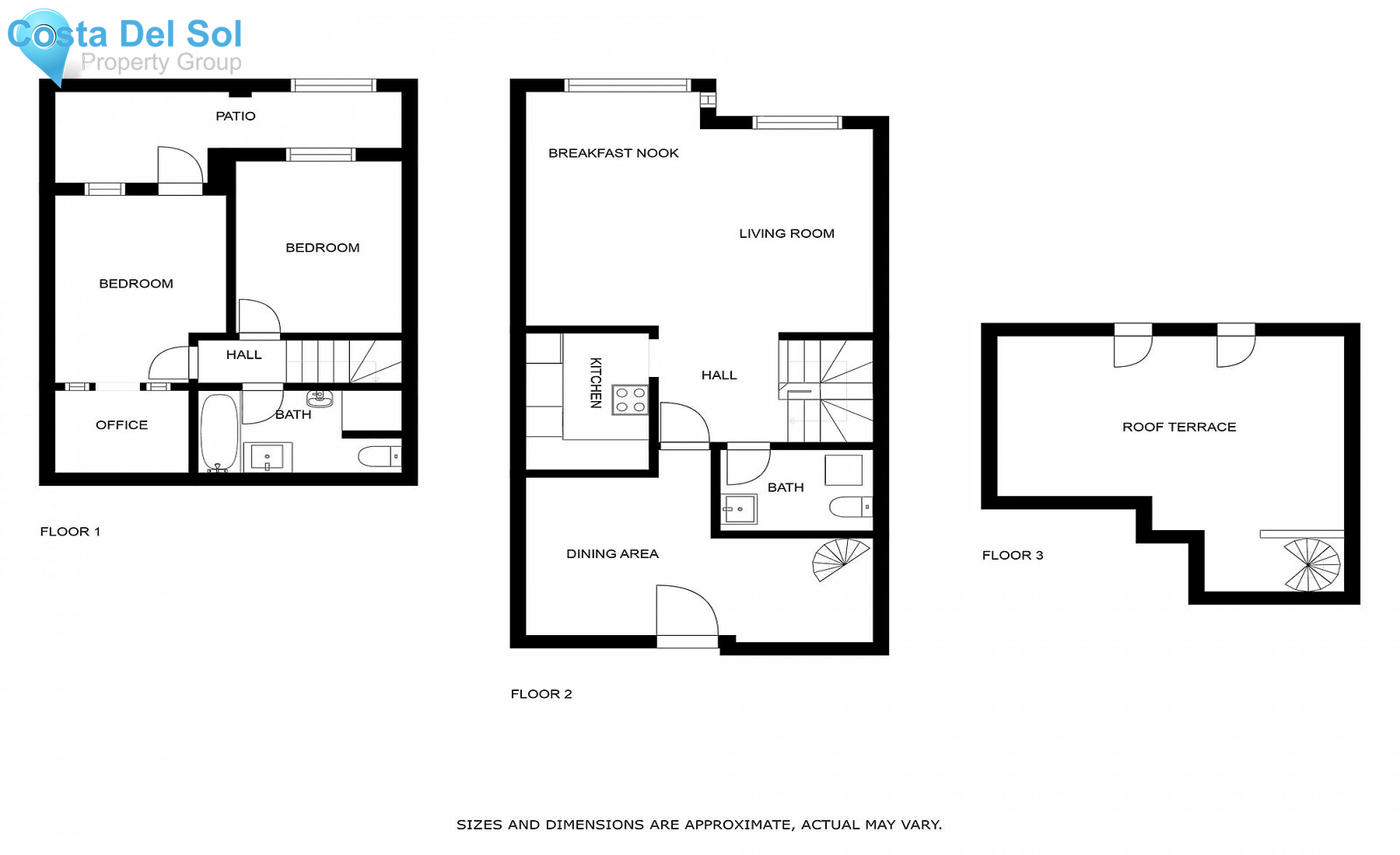
Spacious and bright townhouse in Torrequebrada.
The home's front terrace has a nice patio and stairs to its own roof terrace.
The roof terrace has plenty of areas to enjoy the sun and a private shower.
The apartment has a well-planned layout; on the upper floor there is a kitchen, living room and dining room as well as a bathroom.
Downstairs are the bedrooms and one of the bathrooms.
There is also plenty of storage space.
The very well maintained community has 2 pools, children's pool as well as a tennis court and a restaurant.
The location is the best and a short walk to the beach and all services.
Welcome to a viewing!


Features
  • Covered Terrace,Near Transport,Private Terrace,Solarium,Gym,Tennis Court,Storage Room,Utility Room,Wood Flooring,Marble Flooring,Jacuzzi

Property video

Location
  • Area: Málaga
  • Town: Torrequebrada

Current Weather in Torrequebrada

Loading Weather...

Taxes & Fees
Community Fees
Basura Tax
IBI Fees


Similar Properties
Townhouse in Benalmadena
Townhouse
Townhouse in Benalmadena
Benalmadena
€ 280,000
  • Bed 2
  • Bath 1
  • 84 m²
Townhouse in Benalmadena Costa
Townhouse
Townhouse in Benalmadena Costa
Benalmadena Costa
€ 245,000
  • Bed 2
  • Bath 2
  • 85 m2
Townhouse in Benalmadena Costa
Townhouse
Townhouse in Benalmadena Costa
Benalmadena Costa
€ 208,000
  • Bed 2
  • Bath 2
  • 70 m2

Notice: Trying to access array offset on value of type bool in /var/www/clients/client5/web6/web/Global-Includes/footer.php on line 1
File does not exist. "https://costadelsolpropertygroup.com/propertyVideos/noVideo.mp4"